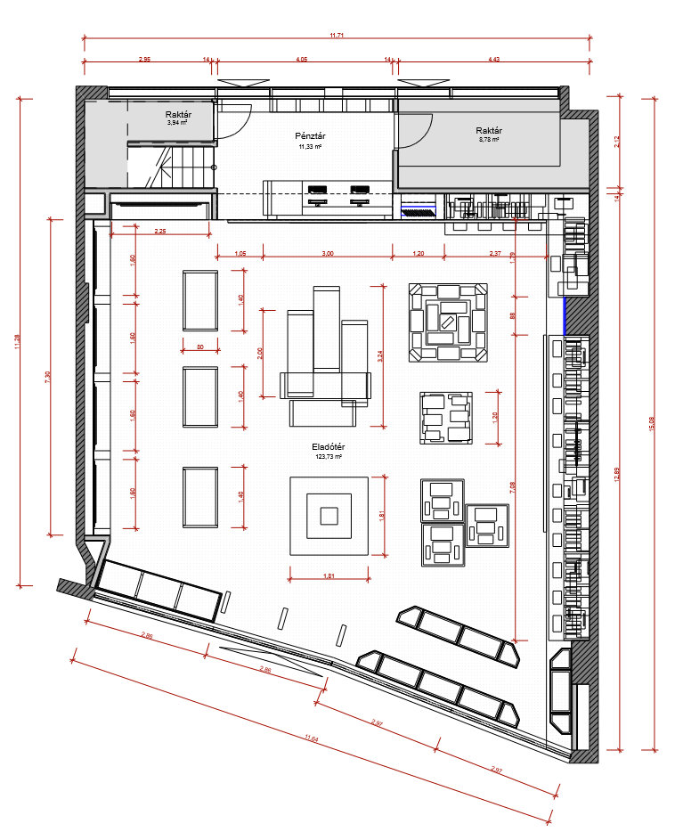
Reálszisztéma menedzser shop tervezés és építés – Westend / Shop planning and construction Látványterv Látványterv Látványterv Látványterv Tervezett alaprajz