Lakás belsőépítészet tervezés – I. kerület // Apartment design planning – I. disctrict
- Nappali – látványterv / Living room – architectural visualization
- Nappali – látványterv / Living room – architectural visualization
- Nappali RGB LED variáció / Living room RGB LED variation – architectural visualization
- Nappali – látványterv – RBG LED variáció
- Nappali RGB LED variáció / Living room RGB LED variation – architectural visualization
- Nappali RGB LED variáció / Living room RGB LED variation – architectural visualization
- Étkező – látványterv / Dining room – architectural visualization
- Konyha – látványterv / Kitchen – architectural visualization
- Konyha variáció – látványterv / Kitchen variation – architectural visualization
- Előszoba – látványterv / Entrance hall – architectural visualization
- Fürdőszoba – látványterv / Bathroom – architectural visualization
- Fürdőszoba – látványterv / Bathroom – architectural visualization
- Hálószoba – látványterv / Bedroom – architectural visualization
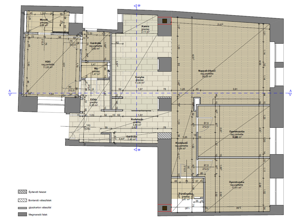
- Tervezett alaprajz / Floor plan layout
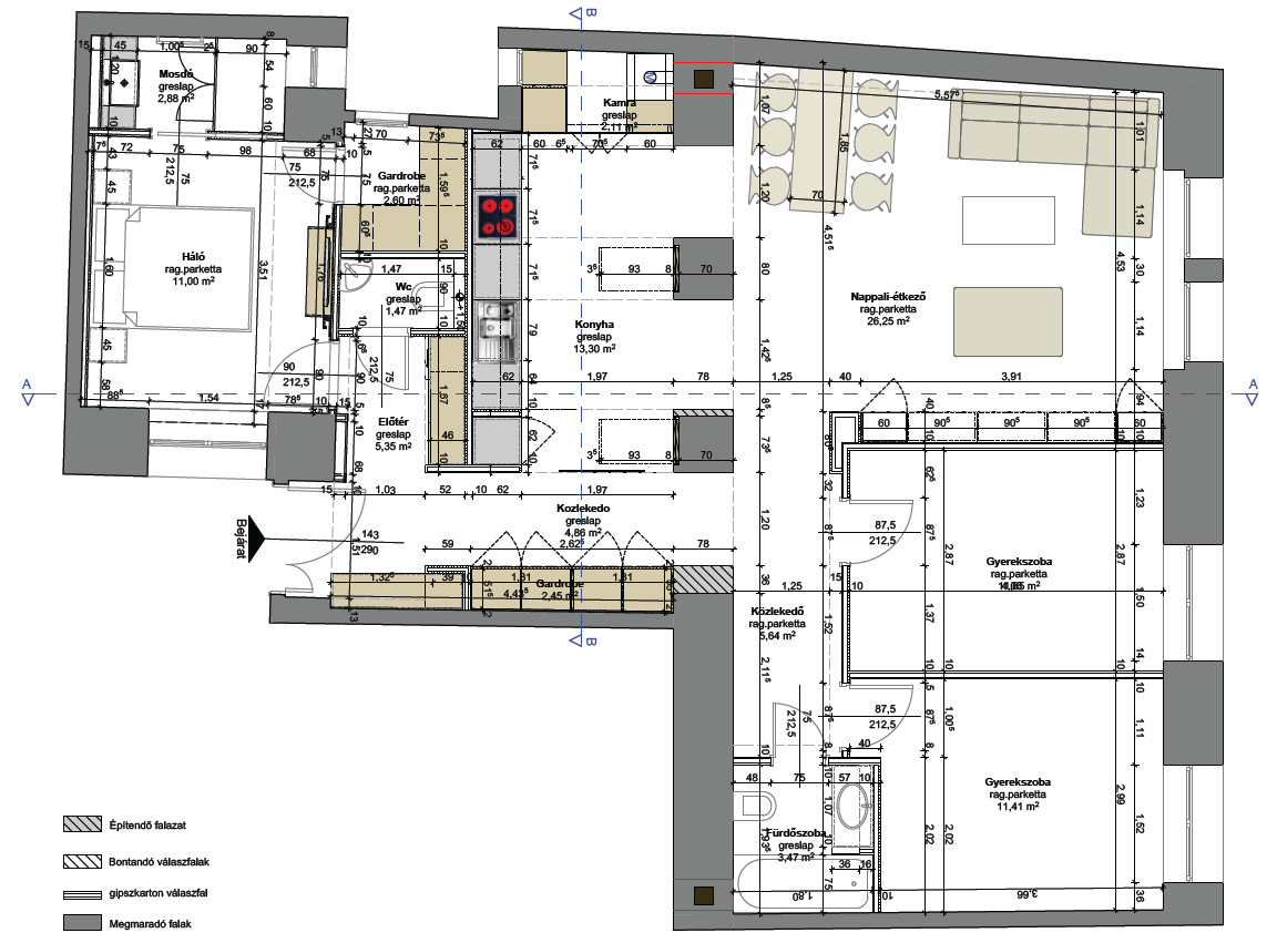
- Új burkolási terv alaprajz
- Egyedi bútorterv – előszoba
- Egyedi bútorterv – beépített szekrény
- Egyedi bútorterv – nappali szekrény / Custom furniture
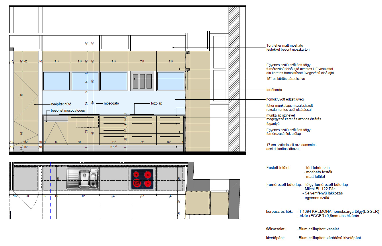
- Egyedi bútorterv – konyha / Custom furniture
- Egyedi bútorterv – beépített szekrény / Custom furniture
- Eredeti állapot
- Eredeti állapot
- Eredeti állapot
- Eredeti állapot – konyha
- Eredeti állapot
























