Családi ház belsőépítészet tervezés – II. kerület // Family house interior design
- Étkező – látványterv / Dining room – architectural visualization
- Nappali – látványterv / Living room – architectural visualization
- Nappali – látványterv / Living room – architectural visualization
- Konyha – látványterv / Kitchen – architectural visualization
- Közlekedő – látványterv / Corridor – architectural visualization
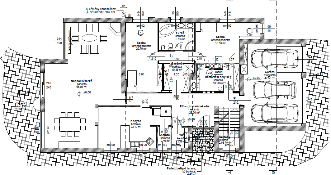
- Tervezett alaprajz – földszint / Ground floor layout
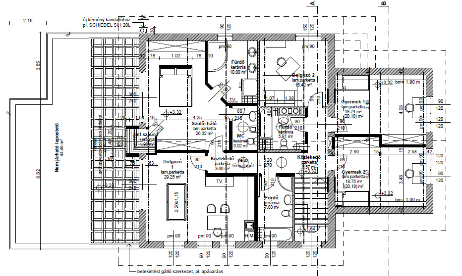
- Tervezett alaprajz – emelet / 1st floor plan layout
- Eredeti terv
- Eredeti terv
- Eredeti terv
- Eredeti állapot
- Eredeti állapot
- Eredeti állapot
- Eredeti állapot
- Eredeti állapot
- Eredeti állapot
- Eredeti állapot
- Eredeti állapot
- Eredeti állapot
- Eredeti állapot
- Eredeti állapot





















